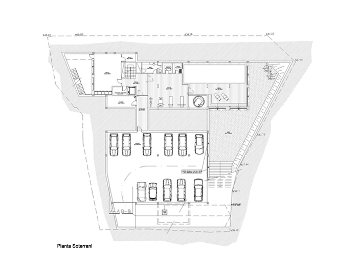
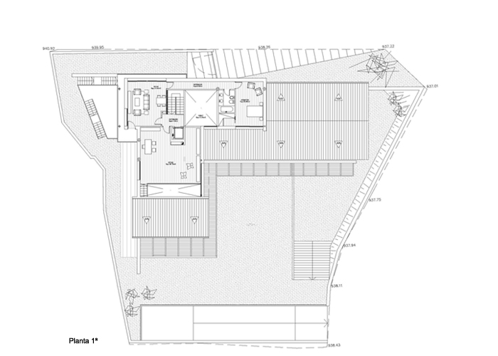
Xalet Al Trillà

El Xalet Al Trillà és un projecte d’habitatge unifamiliar que combina la tradició arquitectònica d’Andorra amb una visió contemporània. L’ús de pedra i fusta en la façana integra l’edifici en el paisatge, mentre que les línies modernes aporten elegància i actualitat. Els espais interiors han estat dissenyats per potenciar la llum natural i les vistes, amb una distribució funcional que garanteix confort i privadesa. La sostenibilitat és un element clau, amb solucions constructives que milloren l’eficiència energètica. Un projecte que reflecteix el compromís d’Engitec amb la qualitat, el respecte a l’entorn i l’excel·lència arquitectònica.