Vivienda als Vilars

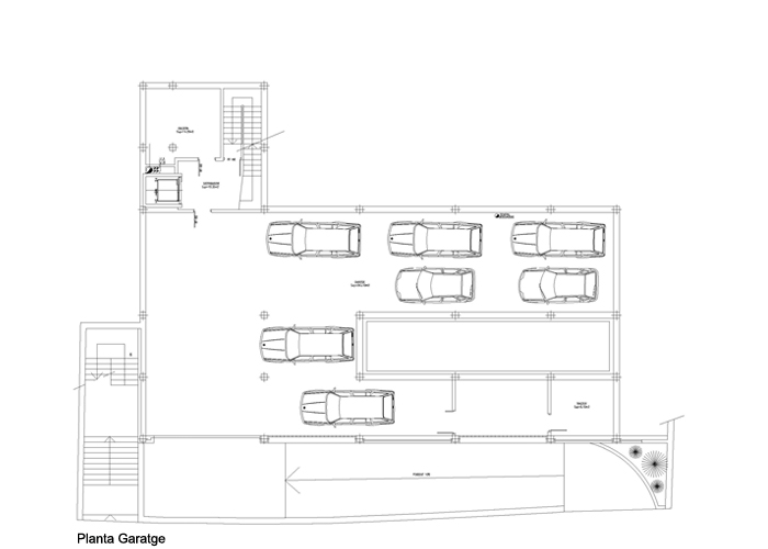
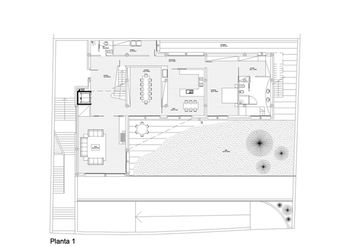
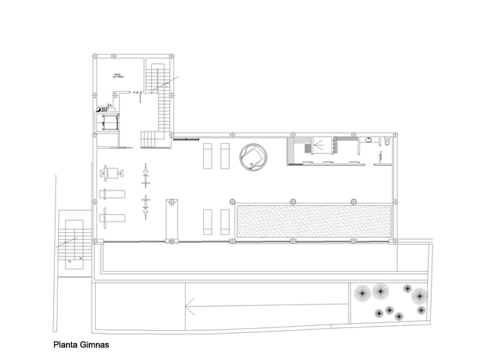
L’Habitatge Unifamiliar als Vilars s’erigeix com una peça d’arquitectura contemporània que dialoga amb la topografia de muntanya i les vistes panoràmiques de l’entorn. La volumetria es resol mitjançant línies pures i l’ús de materials autòctons com la pedra i la fusta, que aporten caràcter i integració paisatgística. L’organització dels espais interiors respon a una jerarquia clara entre àrees públiques i privades, buscant sempre la connexió amb la llum natural i l’exterior. El projecte reflecteix una arquitectura de proporcions equilibrades, amb una atenció especial a la funcionalitat i a la sostenibilitat, reafirmant el compromís d’Engitec amb la qualitat arquitectònica i el respecte pel territori.