Vivendes Unifamiliars – Sant Ermengol

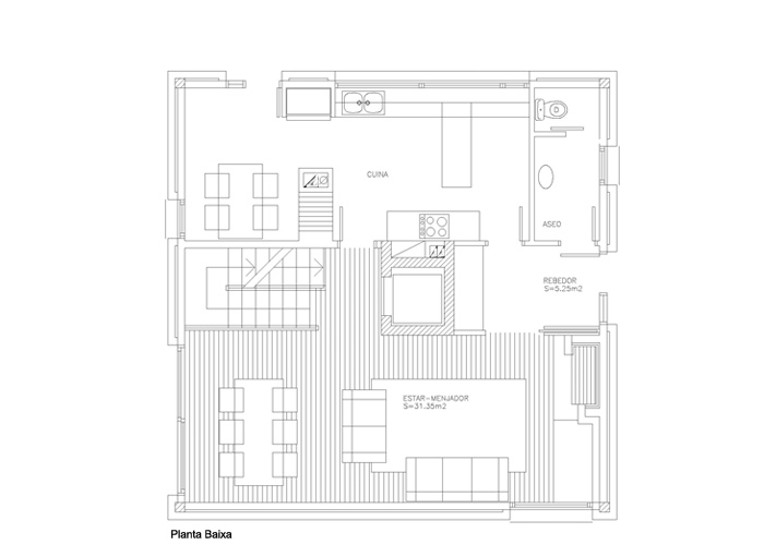
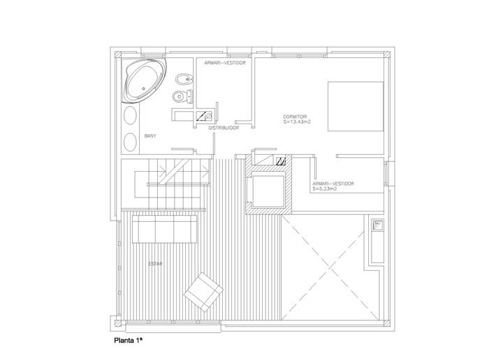
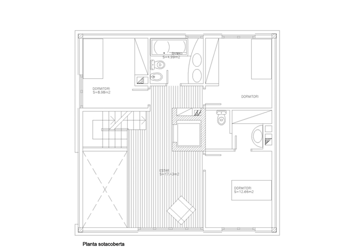
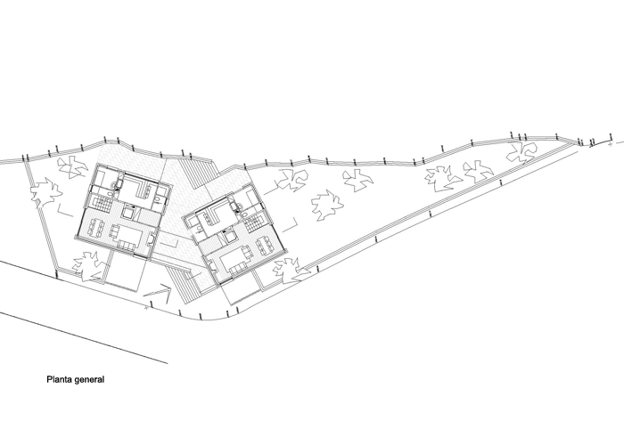
El projecte de les Vivendes Unifamiliars a Sant Ermengol desenvolupa una proposta d’arquitectura contemporània integrada en el teixit urbà. Les edificacions es resolen amb volums clars i l’ús de materials nobles com la pedra i la fusta, aportant durabilitat i harmonia amb l’entorn. Els espais interiors han estat dissenyats amb criteris de funcionalitat i confort, potenciant la llum natural i oferint una relació fluida amb els espais exteriors. Les solucions constructives incorporen aïllaments tèrmics avançats i instal·lacions modernes, garantint un alt nivell de sostenibilitat i eficiència energètica. Un conjunt residencial que reafirma el compromís d’Engitec amb la qualitat i l’excel·lència tècnica.