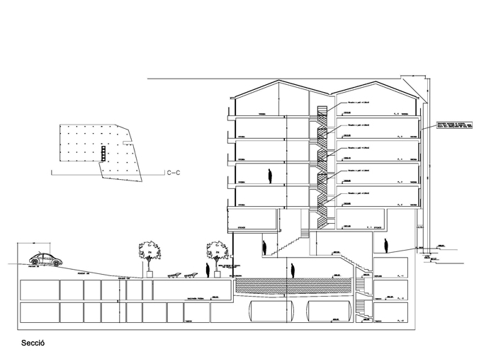
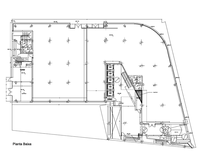
Vivendes i Locals – Baixada del Molí

L’Edifici de Vivendes i Locals Comercials a la Baixada del Molí és un exemple d’arquitectura urbana contemporània que combina elegància formal i eficiència funcional. La seva façana, resolta amb panells de fusta tècnica, vidre i pedra, crea un joc de plans i textures que aporten profunditat i moviment visual.

Els espais interiors s’han concebut amb una cura especial pels materials, la llum i la continuïtat espacial. L’ús del vidre translúcid, la il·luminació integrada i els acabats naturals defineixen ambients càlids i atemporals. Els locals comercials de planta baixa dinamitzen el carrer, mentre que les zones comunes combinen disseny i funcionalitat.