Vivenda – Mallorca

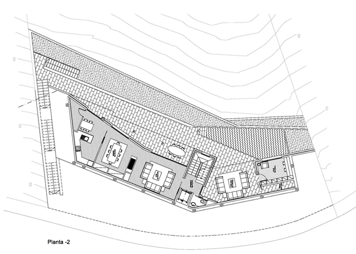
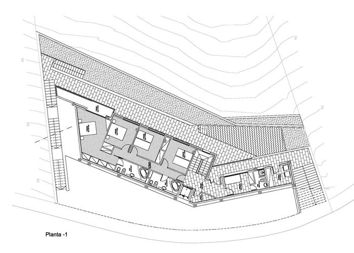
La Vivenda Unifamiliar a Mallorca és un projecte que combina arquitectura mediterrània i contemporaneïtat, posant en valor la relació entre l’espai interior i l’exterior. La volumetria es resol amb formes netes i materials nobles com la pedra local, la fusta i el vidre, que aporten identitat i harmonia amb l’entorn. Els espais interiors s’han concebut amb una distribució funcional i fluida, que potencia la llum natural i genera ambients còmodes i acollidors. El projecte integra criteris de sostenibilitat i eficiència energètica, reforçant el compromís d’Engitec amb una arquitectura de qualitat, respectuosa amb el medi ambient i adaptada al clima mediterrani.