Reforma Xalet Organyà

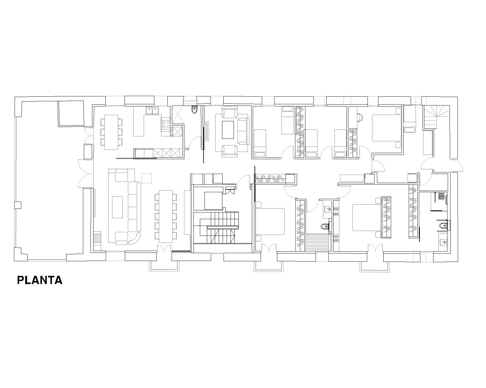
La Reforma d’Habitatge Unifamiliar a Organyà ha tingut com a objectiu principal la transformació dels espais interiors, adaptant-los a un estil de vida més actual i funcional. S’ha redefinit la distribució per aconseguir ambients oberts i luminosos, potenciant la presència de la llum natural i la connexió amb l’exterior. Els materials i acabats contemporanis aporten calidesa i elegància, mentre que els detalls constructius garanteixen la qualitat i la durabilitat. El projecte incorpora solucions d’aïllament i instal·lacions modernes, millorant el confort i l’eficiència energètica. Una actuació que reflecteix l’expertesa d’Engitec en reformes d’interiors que uneixen estètica, funcionalitat i sostenibilitat.