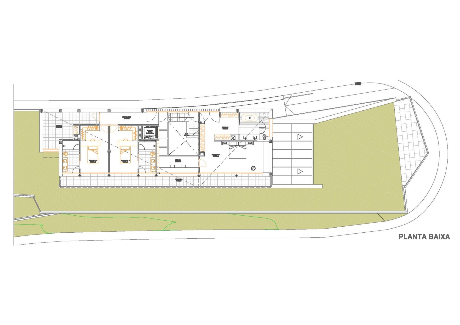
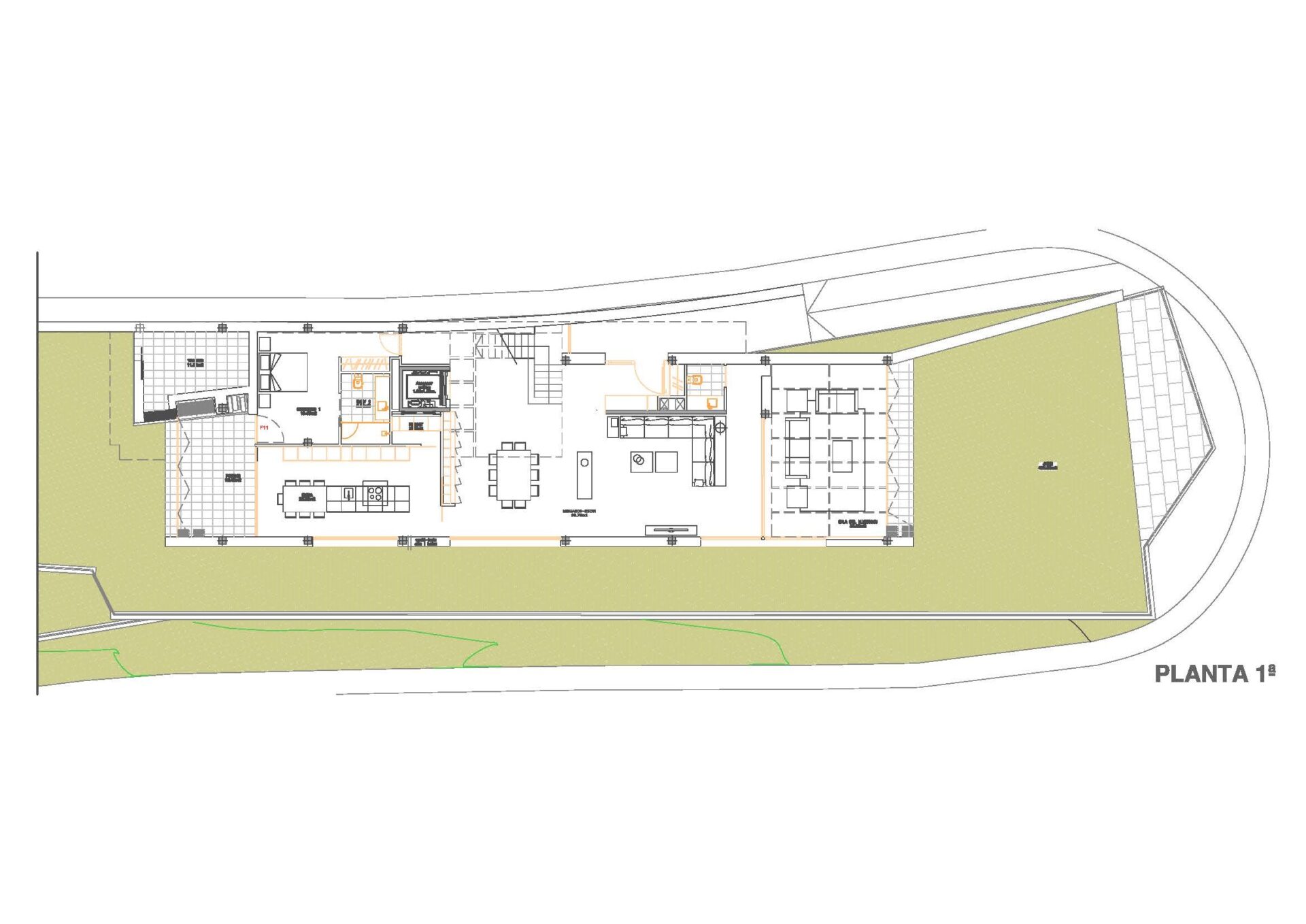
Instal·lacions – Vivenda Els Oriosos

El projecte d’instal·lacions per a la vivenda unifamiliar als Cortals d’Anyós va incorporar tecnologia d’alta eficiència energètica i sistemes de control intel·ligent. L’actuació va incloure aerotèrmia per a calefacció i refrigeració, ventilació mecànica amb recuperació de calor, il·luminació LED regulable i xarxes domòtiques per a la gestió centralitzada. Dissenyat amb criteris de sostenibilitat i confort, el projecte d’Engitec exemplifica la seva especialització en instal·lacions residencials d’avantguarda adaptades a entorns de muntanya.