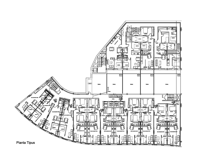
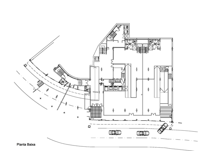
Habitatges Socials La Solana al Pas de la Casa

Projecte guanyador del primer premi del concurs d’habitatges socials al Pas de la Casa.

L’edifici  s’integra amb l’entorn de muntanya utilitzant pedra, fusta i metall. La seva façana dinàmica i els interiors funcionals i lluminosos reflecteixen un equilibri entre eficiència energètica, disseny contemporani i respecte pel paisatge.