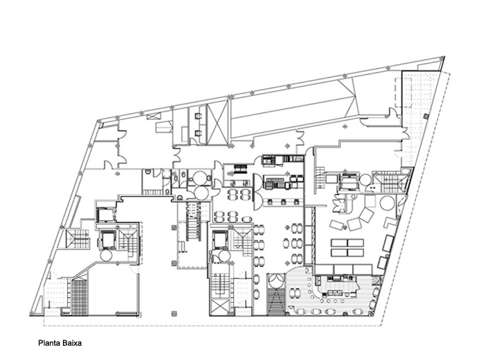
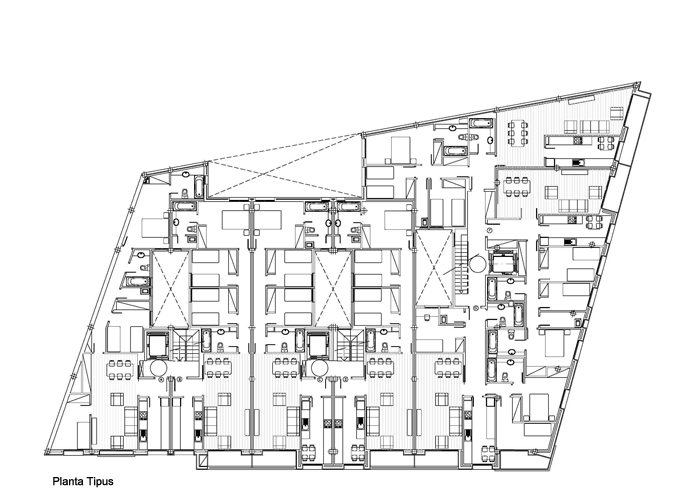
Habitatges i Locals a la Plaça de la Germandat

Ubicat al cor de Sant Julià de Lòria, aquest edifici plurifamiliar amb locals comercials s’integra amb elegància en l’entorn urbà de la Plaça de la Germandat. El projecte d’Engitec aposta per una arquitectura racional i contemporània, amb una clara vocació d’eficiència funcional i presència cívica.

La façana, resolta amb panells de pedra natural i elements ceràmics, combina materials tradicionals i tecnologia actual, mentre que la planta baixa transparent afavoreix la connexió visual amb l’espai públic. Els habitatges, lluminosos i de distribució flexible, ofereixen confort, sostenibilitat i qualitat constructiva, consolidant un edifici emblemàtic dins el teixit urbà lauredià.