Estació de serveis – La Margineda

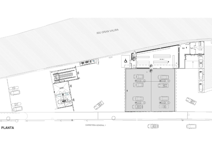
El projecte de l’estació de serveis a la CG1, La Margineda, combina eficiència operativa i disseny contemporani per oferir un espai funcional i segur per als usuaris. L’actuació inclou la formació de zones de subministrament i aparcament, una coberta metàl·lica lleugera i la integració d’un edifici de serveis amb criteris d’eficiència energètica. La intervenció s’ha concebut amb una especial atenció a la visibilitat viària i la integració paisatgística, consolidant-se com un referent en infraestructures privades de mobilitat a Andorra.