Edifici Font Amagada, Anyós

Edifici Font Amagada, Anyós

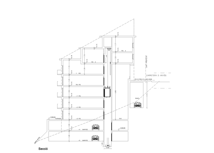
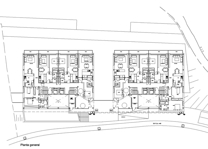
Integrat en el paisatge de muntanya, aquest conjunt residencial combina pedra, fusta i pissarra per aconseguir una estètica contemporània i arrelada a l’entorn. Els edificis, disposats en diferents nivells, permeten que cada habitatge gaudeixi de vistes àmplies, llum natural i terrasses obertes a la vall. Una arquitectura pensada per al confort, la sostenibilitat i la connexió amb la natura.