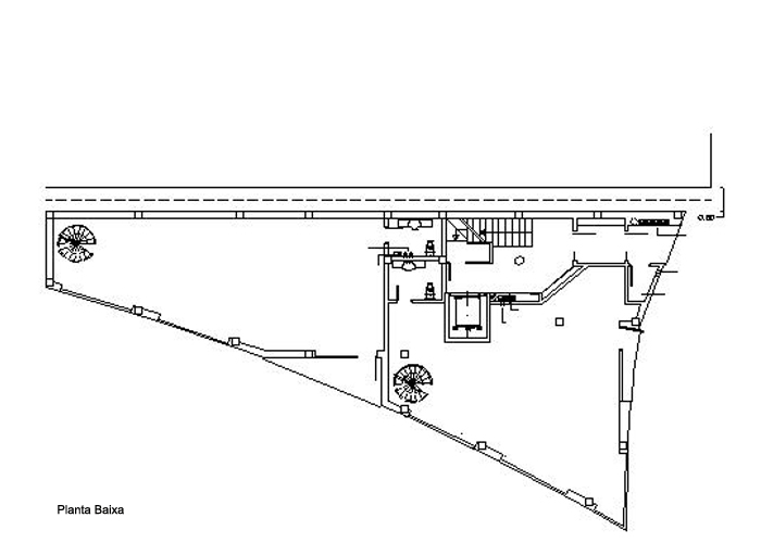
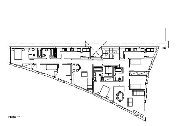
Edifici al C/ Josep Viladomat

Projecte d’habitatge urbà que destaca per la seva façana corba, una solució que respon a la geometria del solar i aporta dinamisme al conjunt. L’edifici combina eficiència, funcionalitat i elegància arquitectònica, amb una distribució interior pensada per optimitzar la llum natural i el confort dels residents.