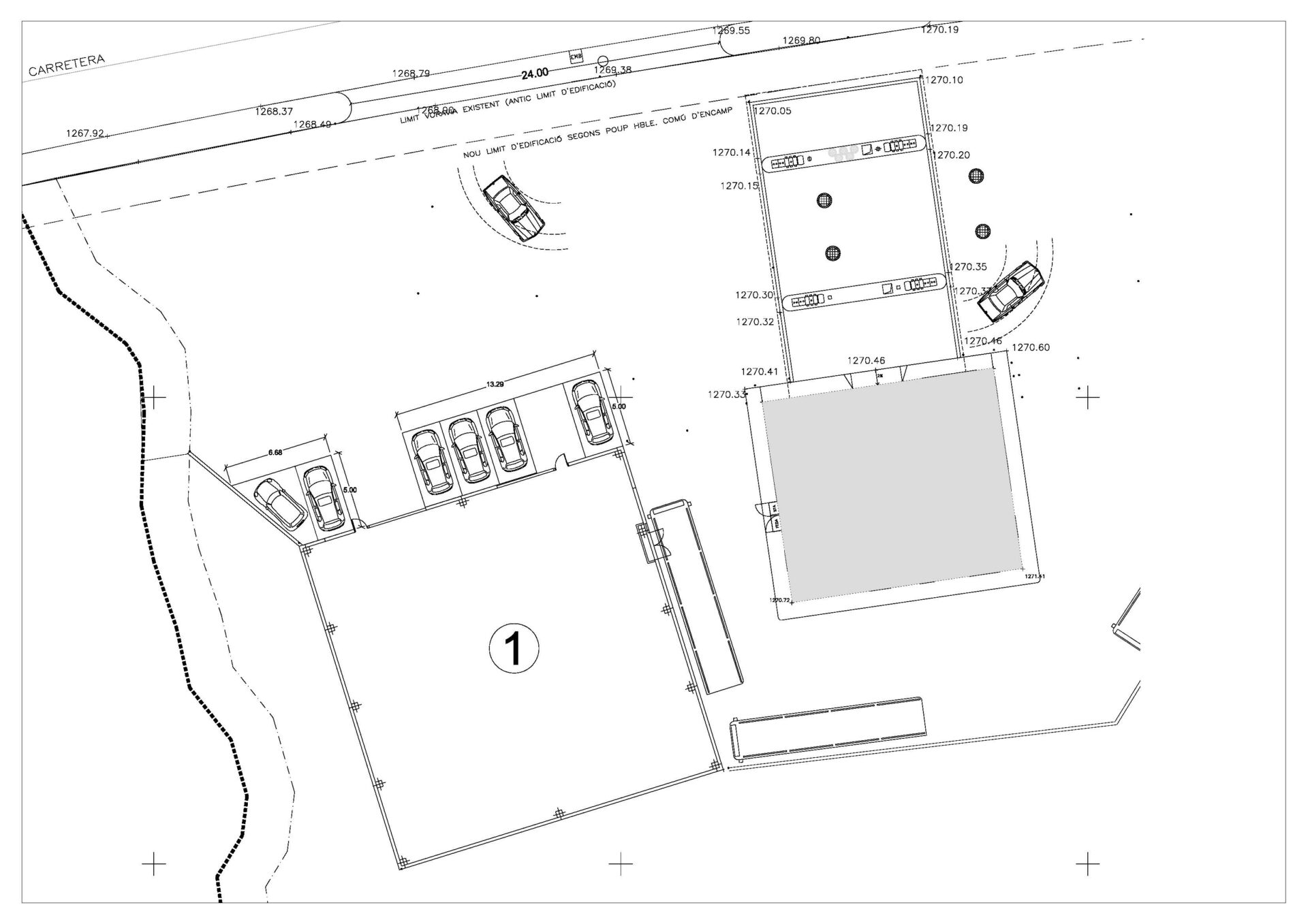
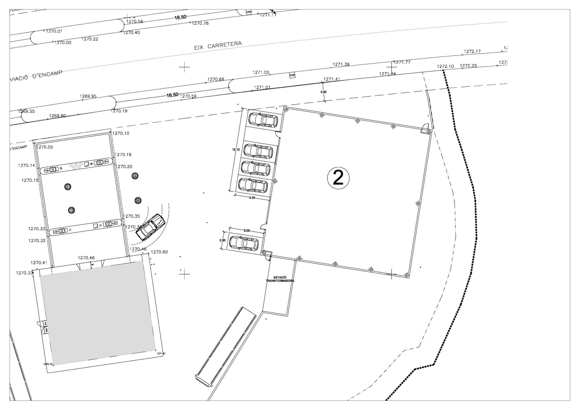
Dues naus a la benzinera d’Encamp

El projecte de dues naus industrials a la benzinera d’Encamp respon a la necessitat d’ampliar els espais logístics i de servei en una zona d’activitat consolidada. L’actuació inclou la construcció de dues estructures metàl·liques independents, amb façanes ventilades i tancaments lleugers que garanteixen durabilitat i eficiència energètica. El disseny prioritza la funcionalitat operativa i la integració arquitectònica amb el conjunt existent, reafirmant la capacitat d’Engitec per desenvolupar projectes industrials adaptats i sostenibles.