Desviació de la Massana

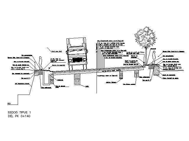
El projecte de desviació de la Massana millora la mobilitat i seguretat viària al llarg de la vall, connectant els punts entre el Pont de Palanques i el Pont d’Arinsal. L’actuació inclou la construcció d’una nova rotonda, murs de contenció, sistemes de drenatge i una renovació integral de l’enllumenat públic. Una obra d’enginyeria civil que optimitza la fluïdesa del trànsit i s’integra amb el paisatge de muntanya de la parròquia de la Massana.