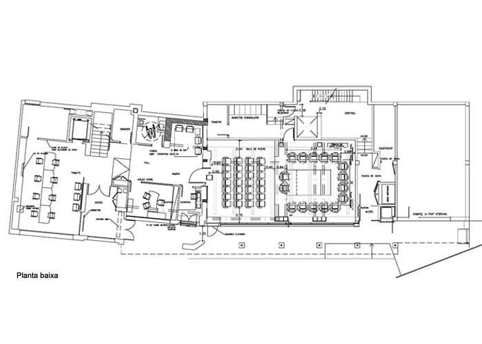
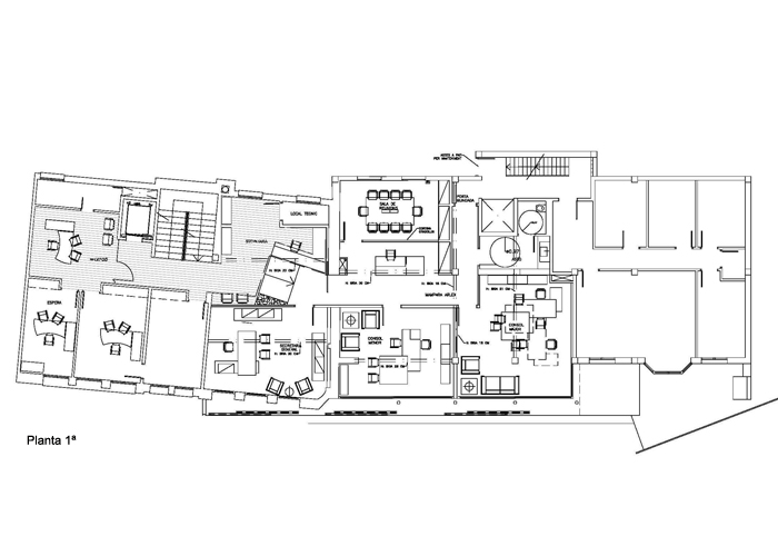
Ampliació i Reforma de la Casa Comuna d’Ordino

L’actuació combina respecte pel patrimoni i modernitat arquitectònica, integrant nous espais funcionals amb l’edifici històric existent. La intervenció destaca per la seva coherència volumètrica i l’ús de materials autòctons com la pedra i la fusta, que dialoguen amb l’entorn d’Ordino. Un projecte que reforça la identitat institucional i la relació amb l’espai públic.